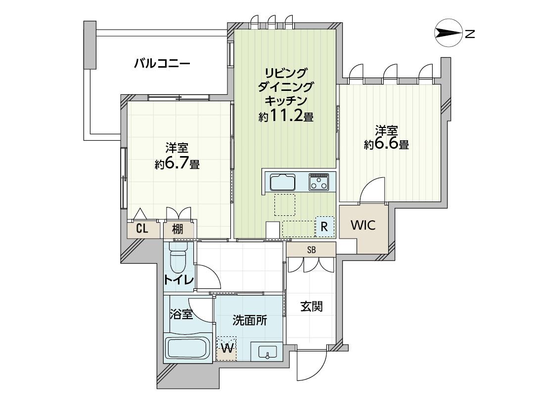
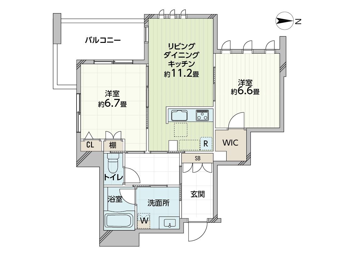
間取り |
賃料(共益費) |
|---|---|
| 2LDK (61.96m2) | ― (―) |
| 沿線・駅 | 総武線「東中野駅」徒歩4分 東京メトロ丸ノ内線「中野坂上駅」徒歩10分 |
|---|---|
所在地 |
東京都 中野区東中野1丁目28-2 (城西エリア) |
| 敷金 | ― |
| 礼金 | ― |
| 仲介手数料 | ― |
オートロック 室内ペットスペース
-
-
間取り

-
地図

| 物件名 | アニコフローラ東中野 | カナヨミ | アニコフローラヒガシナカノ |
|---|---|---|---|
| 所在地 |
東京都 中野区東中野1丁目28-2 (城西エリア)
![]() |
めやす賃料 |
―
|
| 沿線・駅 | 総武線「東中野駅」徒歩4分 東京メトロ丸ノ内線「中野坂上駅」徒歩10分 |
入居日 | - |
| 構造 | 重量鉄骨造 | 取引形態 | 専任媒介 |
| 築年月 | 2021-03-31 | 損保 | 要加入 |
| 駐車場 | なし |
備考 | ※間取図、設備等は、引渡し時と異なる場合は、引渡し時の現況を優先とさせていただきます。 ■貸主指定の保険に加入のこと。 ■保証会社をご利用いただきます。 ■賃料のお支払いは、口座振替となります。(法人の場合は相談) ■退出時、クリーニング費用の負担があります。 ■ペット審査・飼育規定があります。 ■仲介手数料は原則貸主0.5か月ですが、この物件に関しましては借主1か月分となります(税別)。 ■電話回線やインターネット回線等の加入代は借主負担となります。 |
| 水回り・トイレ | バス・トイレ別,シャワー水栓付独立洗面台,洗浄機能付トイレ,追焚機能付風呂,浴室乾燥機,室内洗濯機置き場,グリル付キッチン |
|---|---|
| 設備・サービス | モニター付インターフォン,インターネット対応,ウォークインクローゼット,エアコン,BS,オートロック,駐輪場,エレベーター,フローリング ,都市ガス,(共用部)防犯カメラ,宅配ボックス,アニコガーデン,トリミングルーム,anicom24(24時間365日どうぶつの専門家に電話相談可能) |
| ペット専用設備 | ペット用スペース,ペット水飲み・足洗い場,ペット対応クロス(見切り材),リードフック |


























