
完成パース図と2007.7撮影(施工中写真)

自然な木の風合いが醸し出す
穏やかな心地よさ
モダンテイストの中に、ほっとするような温もり感を漂わせる、穏やかなコーディネーション。シンプルなデザインの建具は、幅広いスタイルの家具とのマッチングも良好。肩肘張らない自然体の暮らしをイメージさせる、アレンジしやすく飽きのこないインテリアです。

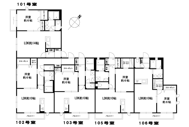
| 101 | 102 | 103 | 105 | 106 |
|---|---|---|---|---|
| 1LDK/46.11㎡ | 1LDK/47.90㎡ | 1LDK/44.86㎡ | 1LDK/46.17㎡ | 1LDK/42.42㎡ |

| 201 | 202 | 203 | 205 | 206 |
|---|---|---|---|---|
| 1LDK/46.11㎡ | 1LDK/47.90㎡ | 1LDK/44.86㎡ | 1LDK/46.17㎡ | 1LDK/42.42㎡ |