
|
|
|
 |
 物件名 |
アレイ野火止B |
|
 |
 所在地 |
埼玉県新座市野火止3-6-2 |
|
 |
 交通 |
JR武蔵野線「新座」徒歩15分 |
|
 |
 構造・施工 |
鉄筋コンクリート造 3階建 |
|
 |
 お部屋 |
2LDK (全12部屋) |
|
 |
 取引形態 |
代理 |
|
 |
 飼育可能ペット |
小型~大型犬・ネコ複数匹飼育可能 |
|
 |
| |

|
|
|
| |

|
|
|
自然豊かな環境にひときわ目立つ外観 |
外観 |
|
|
エントランス |
吹き抜け部分 |
|
|
エントランス |
物件周辺 |
|
| |

|
オートロック、エアコン(1基)、追い焚き機能付風呂、浴室乾燥機、システムキッチン(ガス3口グリル付)、カラーモニター付インターフォン、シャワー水栓付独立洗面台、CATV、インターネット対応(Bフレッツ)、ペットトイレスペース、ドッグラン、駐輪場、駐車場(敷地内)、バイク置き場(サイズ指定有)
|
|
|
|
|
|
|
システムキッチン(ガス3口グリル付) |
シャワー水栓付洗面台 |
お風呂(追い焚き機能付) |
トイレ |
|
|
|
オートロック・室内インターホン |
ペットくぐりドア(室内) |
入居者様専用ドッグラン |
|
|
|
| |

|
| |
|
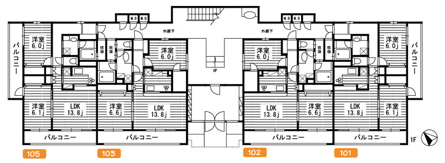
105 |
103 |
102 |
101 |
62.22m²・2LDK |
60.60m²・2LDK |
60.00m²・2LDK |
62.22m²・2LDK |
|
| |
| |
|
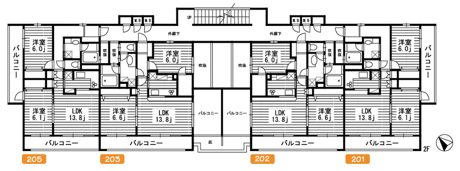
205 |
203 |
202 |
201 |
62.22m²・2LDK |
60.60m²・2LDK |
60.00m²・2LDK |
62.22m²・2LDK |
|
| |
| |
|
305 |
303 |
302 |
301 |
62.22m²・2LDK |
60.60m²・2LDK |
60.00m²・2LDK |
62.22m²・2LDK |
|
| |
| |